UFFICIO FRONTE STRADA CON PARCHEGGIO

Lucca - Arancio, San Filippo

€ 230.000

140 m2

Galleria immagini

Foto principale
Foto immobile
Foto immobile
Foto immobile
Foto immobile
Foto immobile
Foto immobile
Foto immobile
Foto immobile
Foto immobile
Foto immobile
Foto immobile

Descrizione

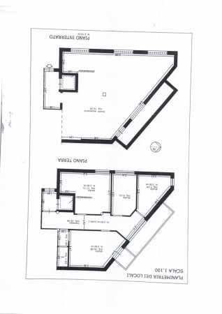
SAN FILIPPO _ RIF VUFF18 In strada ad alto passaggio veicolare proponiamo in vendita ufficio su due livelli, piano terra e piano intererrato di complessivi 140 mq circa con ascensore che collega i piani . Al suo interno troviamo, al piano terra di citca 70 mq , un ingresso, oltre a quattro vani adibiti a uffici e bagno con antibagno. Al piano seminterrato troviamo ampio vano open space pluriuso . Piazzale per 4/5 auto . Riscaldamento autonomo con split caldo / freddo con infissi in alluminio con doppi vetri. Sono presenti spese condominiali pari a euro 70,00 al mese. RICHIESTA ECONOMICA EURO 230.000,00.

Dettagli dell'immobile

Riferimento: VUFF18
Tipologia: Ufficio
Stato: Buono
Prezzo: €230.000
Vani: 5
MQ: 140

Caratteristiche

Planimetrie

Foto principale

VUOI SAPERE SE LA TUA CASA É IN REGOLA
CON LE VARIE DOCUMENTAZIONI PER ESSERE VENDUTA ?

Scopri come fare