Appartamento al terzo e ultimo piano in villa Liberty

Lucca - Massa Pisana, San Lorenzo a Vaccoli, Santa Maria

€ 149.000

125 m2

Galleria immagini

Foto principale
Foto immobile
Foto immobile
Foto immobile
Foto immobile
Foto immobile
Foto immobile
Foto immobile
Foto immobile
Foto immobile
Foto immobile
Foto immobile
Foto immobile
Foto immobile
Foto immobile
Foto immobile
Foto immobile
Foto immobile
Foto immobile
Foto immobile
Foto immobile
Foto immobile
Foto immobile
Foto immobile

Descrizione

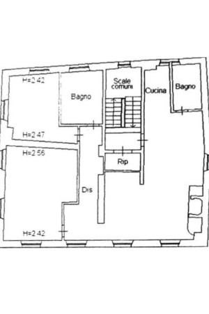
Santa Maria del Giudice - In ESCLUSIVA Rif. V1115 In palazzina liberty vendesi appartamento al terzo e ultimo piano. L'ingresso alla proprietà avviene dal vano scale condominiale dove trova posto un comodo ripostiglio con zona caldaia. Si entra nell'ampia zona giorno con camino e cucina a vista, disimpegno, due camere di generose dimensioni e due bagni di cui uno con doccia e l'altro con vasca. L'appartamento viene venduto arredato. Richiesta € 149.000,00

Dettagli dell'immobile

Riferimento: V1115
Tipologia: Attico
Stato: Ottimo
Prezzo: €149.000
Camere: 2
MQ: 125

Caratteristiche

Riscaldamento
Arredato

Planimetrie

Foto principale

VUOI SAPERE SE LA TUA CASA É IN REGOLA
CON LE VARIE DOCUMENTAZIONI PER ESSERE VENDUTA ?

Scopri come fare