CAPANNONE AL PIANO TERRA DI PIU' AMPIO COMPLESSO

Capannori - Segromigno, San Colombano, Camigliano, Gragnano

€ 250.000

220 m2

Galleria immagini

Foto principale
Foto immobile
Foto immobile
Foto immobile
Foto immobile

Descrizione

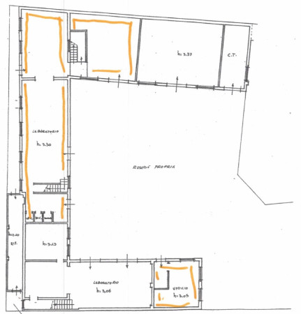
SEGROMIGNO IN MONTE: RIF VCAP39 In più ampio complesso proponiamo in vendita laboratorio sito in zona Segromigno in monte. Per un tolale di 220 mq il locale si sviluppa al piano terra e comprende un grande vano, un ufficio, un ulteriore vano oltre ai due bagni. Altezza 3,30 metri. RICHIESTA EURO 250.000,00 * * L’agenzia immobiliare di Marco Catelli è il frutto di un processo di crescita che ha avuto inizio nel 2004 a Lucca e che oggi si materializza in un’agenzia con profonda competenza ed esperienza in tutti i settori delle intermediazioni immobiliari. Il risultato ottenuto dimostra che la vendita e l’affitto di qualsiasi tipo di proprietà (appartamenti, ville, case in campagna ed altro) sono seguite con pari preparazione e professionalità. Con la nascita della prima agenzia Studio Affitti ebbe inizio un percorso di successo che ha portato alla fidelizzazione di una vasta clientela spesso alla ricerca, non solo di immobili in affitto, ma anche di consulenza per una pianificazione strategica atta ad ottimizzare il flusso reddituale del patrimonio immobiliare. Questa richiesta di consulenza ha determinato nel tempo un ampliamento dell’attività ormai consolidata nel territorio lucchese, con l’apertura di un nuovo ramo interamente dedicato alla compravendita di immobili, Studio Vendite. La vocazione turistica dell'area di Lucca in cui l’agenzia opera, vede un forte incremento negli ultimi anni e questo genera una nuova esigenza per l’agenzia immobiliare: saper rispondere alla clientela interessata agli affitti a breve termine, a cui oggi Studio Holidays è rivolto. Marco Catelli accoglie queste tre entità professionali indipendenti coordinando lo staff specializzato sotto la propria supervisione e rimanendo in contatto con una rete di partner in tutto il mondo per garantire una consulenza sempre più globale.

Dettagli dell'immobile

Riferimento: VCAP39
Tipologia: Capannone
Stato: Buono
Prezzo: €250.000
Vani: 0
MQ: 220

Caratteristiche

Planimetrie

Foto principale

VUOI SAPERE SE LA TUA CASA É IN REGOLA
CON LE VARIE DOCUMENTAZIONI PER ESSERE VENDUTA ?

Scopri come fare