APPARTAMENTO RISTRUTTURATO AL PRIMO PIANO OLTRE MANSARDA

Lucca - Santissima Annunziata, San Pietro a Vico, San Cas

€ 229.000

100 m2

Galleria immagini

Foto principale
Foto immobile
Foto immobile
Foto immobile
Foto immobile
Foto immobile
Foto immobile
Foto immobile
Foto immobile
Foto immobile
Foto immobile
Foto immobile
Foto immobile
Foto immobile
Foto immobile
Foto immobile
Foto immobile
Foto immobile
Foto immobile
Foto immobile
Foto immobile
Foto immobile
Foto immobile
Foto immobile
Foto immobile
Foto immobile
Foto immobile
Foto immobile
Foto immobile
Foto immobile
Foto immobile
Foto immobile
Foto immobile
Foto immobile
Foto immobile
Foto immobile
Foto immobile

Descrizione

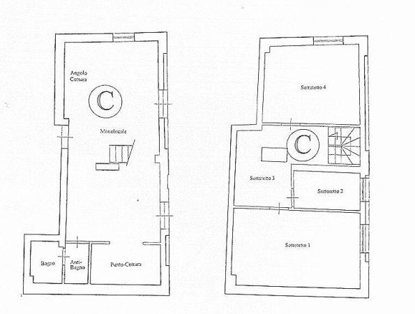
SAN PIETRO A VICO _ RIF. V1101 In terratetto completamente ristrutturato nel 2011, vendesi appartamento al primo piano e mansarda in ottime condizioni di manutenzione. Attraverso la scala condominiale si raggiunge il primo piano dello stabile dove trova posto l'ingresso dell'appartamento. Si entra in casa nella spaziosa zona giorno con angolo cottura. Un bagno con doccia completa questo livello. Raggiungiamo la zona notte al piano mansardato dalla scala al centro dell'appartamento. Qui trovano posto due camere e un bagno con vasca. Completano l'immobile la resede di circa 36 mq distaccata dall'immobile principale e posto auto. RICHIESTA EURO 229.000,00

Dettagli dell'immobile

Riferimento: V1101
Tipologia: Appartamento
Stato: Ottimo
Prezzo: €229.000
Camere: 2
MQ: 100
Posti auto: 2

Caratteristiche

Riscaldamento

Planimetrie

Foto principale

VUOI SAPERE SE LA TUA CASA É IN REGOLA
CON LE VARIE DOCUMENTAZIONI PER ESSERE VENDUTA ?

Scopri come fare